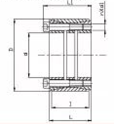
Z12B type locking assembles
1. Compared with the general interference connection and key connection, the sleeve connection has many unique advantages:
(1) The use of expansion sleeve makes the manufacture and installation of the main machine parts simple. The machining of the shaft and hole for installing the expansion sleeve does not require high precision manufacturing tolerances like interference fit. There is no need for heating, cooling or pressurizing equipment when the expansion sleeve is installed, only need to tighten the bolts according to the required torque. And the adjustment is convenient, the wheel hub can be conveniently adjusted to the required position on the shaft. Expansion sleeves can also be used to join parts with poor weldability.
(2) Long service life and high strength of the expansion sleeve. The expansion sleeve relies on friction transmission, there is no keyway to weaken the connected part, there is no relative movement, and there will be no wear in the work.
(3) When the expansion sleeve is overloaded, it will lose the connection function, which can protect the equipment from damage.
(4) The expanded sleeve connection can withstand multiple loads, and its structure can be made into a variety of styles. According to the size of the installation load, multiple expansion sleeves can also be used in series.
(5) The expansion sleeve is easy to disassemble and has good interchangeability. Since the expansion sleeve can combine the shaft hub with the larger matching gap, the bolt can be loosened when disassembling, so that the connected part can be easily disassembled. When the contact surface is tightly fitted, it is not easy to produce rust, and it is also easy to connect and disassemble.
2. Torque torque and axial torque of the expansion sleeve
(1) Torque Mt refers to the maximum theoretical torque when transferring pure torque, and axial force Ft refers to the maximum axial force that can be transferred without transferring torque. If you transmit not only torque but also axial force.
(2) Tightening torque MA of the bolt
The torque Mt and axial force Ft specified in the standard are calculated according to the corresponding screw tension, and the tightening torque of the screw should reach the required rating in the technical parameter table.
|
Basic size |
Hexagon socket screw |
Rated load |
Expansion sleeve and axle junction |
Expansion sleeve and wheel hub |
Tightening torque of the screw |
weight |
||||||
|
d |
D |
1 |
L |
L1 |
d1 |
n |
Axial force Ft |
Torque Mt |
Pressure on the joint surface |
Pressure on the bonding surface |
w.t |
|
|
Basic dimensions(mm) |
kN |
KN-m |
pf N/mm2 |
pf N/mm² |
MaNm |
kg |
||||||
|
200 |
260 |
88 |
102 |
116 |
M14 |
20 |
1020 |
102 |
194 |
124 |
230 |
15.3 |
|
220 |
285 |
96 |
108 |
124 |
M16 |
15 |
1060 |
117 |
174 |
113 |
355 |
20.2 |
|
240 |
305 |
96 |
108 |
124 |
M16 |
20 |
1410 |
170 |
212 |
140 |
355 |
21.8 |
|
260 |
325 |
96 |
108 |
124 |
M16 |
21 |
1480 |
193 |
205 |
138 |
355 |
23.4 |
|
280 |
355 |
96 |
110 |
130 |
M20 |
15 |
1650 |
232 |
213 |
141 |
690 |
30.0 |
|
300 |
375 |
96 |
110 |
130 |
M20 |
15 |
1650 |
249 |
198 |
134 |
690 |
31.2 |
|
320 |
405 |
124 |
136 |
156 |
M20 |
20 |
2210 |
354 |
191 |
125 |
690 |
48.0 |
|
340 |
425 |
124 |
136 |
156 |
M20 |
20 |
2210 |
376 |
180 |
119 |
690 |
51.0 |
|
360 |
455 |
140 |
156 |
177 |
M22 |
20 |
2750 |
496 |
185 |
118 |
930 |
69.0 |
|
380 |
475 |
140 |
155 |
177 |
M22 |
20 |
2750 |
524 |
175 |
113 |
930 |
73.0 |
|
400 |
495 |
140 |
155 |
177 |
M22 |
22 |
3010 |
602 |
183 |
122 |
930 |
76.0 |
|
420 |
515 |
140 |
155 |
177 |
M22 |
24 |
3300 |
694 |
190 |
127 |
930 |
80.0 |
|
440 |
535 |
140 |
155 |
177 |
M22 |
24 |
3300 |
728 |
166 |
123 |
930 |
81 |
|
460 |
555 |
140 |
155 |
177 |
M22 |
24 |
3300 |
760 |
159 |
118 |
930 |
85 |
|
480 |
575 |
140 |
155 |
177 |
M22 |
25 |
3440 |
830 |
159 |
119 |
930 |
88 |
|
500 |
595 |
140 |
166 |
177 |
M22 |
25 |
3440 |
861 |
153 |
115 |
930 |
91 |
|
520 |
615 |
140 |
155 |
177 |
M22 |
28 |
3850 |
1003 |
164 |
124 |
930 |
95 |
|
540 |
635 |
140 |
155 |
177 |
M22 |
28 |
3850 |
1042 |
158 |
120 |
930 |
98 |
|
560 |
655 |
140 |
155 |
177 |
M22 |
30 |
4130 |
1157 |
163 |
125 |
930 |
101 |
|
580 |
675 |
140 |
155 |
177 |
M22 |
30 |
4130 |
1199 |
158 |
121 |
930 |
104 |
|
600 |
695 |
140 |
155 |
177 |
M22 |
30 |
4130 |
1240 |
153 |
118 |
930 |
108 |






